Heute setzt die Schüco Fassade FW 50 + .SI den Wärmedämmstandard für Pfosten-Fassaden. Auch bei der Verwendung von Materialien mit maximaler Wärmedämmung sind uneingeschränkte Konstruktionsfreiheit sowie einfache und effiziente Fertigung gegeben.
Dieses Produkt ist Teil des GeSBC Navigators und kann auch unter www.dgnb-navigator.de eingesehen werden.
Produktvorteile
Optimierte Wärmedämmung mit intelligenten Isolatorsystemen mit Uf-Werten bis 0,70 W / (m²K) inklusive Schraubenfaktor
Reflektierende Oberflächen auf der Isolierleiste und auf der Kunststoff-Druckplatte reduzieren Energieverluste durch Wärmestrahlung
Große Glaslasten von bis zu 700 kg pro Heck können mit Systemteilen (FW 50+)
Dreifachverglasung mit bis zu 82 mm Glasdicke durch das umfangreiche Verglasungsunterstützungssystem
Eine Vielzahl von Produkten mit unterschiedlichen Profiltiefen und ein umfassendes Sortiment an Abdeckkappen für nahezu alle architektonischen und baulichen Anforderungen.
Werkstoff Aluminium
Art der Konstruktion
Wärmedämmend
Hochwärmegedämmt
Sicherheit
Einbruchhemmung DIN V ENV 1627 bis 1630 WK 1
WK 2
WK 3
Fassaden
Vorhangfassaden
Nicht belüftete Fassaden (Pfosten / Riegel)
Belüftete und nicht belüftete Fassaden
Ribbon Fensterfassade
Dachfenster
Weitere Tests
Witterungsbeständigkeit DIN EN 12154 RE1200
Thermische Durchlässigkeit DIN EN 12412-2 Uf = 0,7W / (m2K)
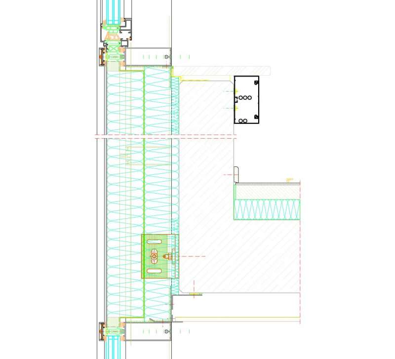
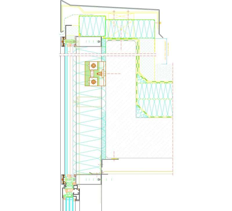
Schüco FW 50 + .SI, hochwärmegedämmte, selbsttragende Aluminiumfassade
Als Pfosten- / Riegelkonstruktion für mehrgeschossige Fassaden mit einer Innen- und Außenseitenbreite von 50 mm.
Design-Merkmale:
Fassadenkonstruktion mit Aluminium-Druckplatte und Schaumstoffstreifen mit hochreflektierender Aluminiumfolie zur Vermeidung von Wärmestrahlung.
Tragende Struktur:
Die tragende Struktur der Fassadenkonstruktion besteht aus rechteckigen Mehrkammer-Hohlprofilen.
Die tragenden Profile befinden sich auf der Raumseite.
Alle Profilränder sind abgerundet.
Die Sprossenprofile sind gekerbt und überlappen die Pfosten, wo sie sich schneiden, so dass jede Feuchtigkeit zuverlässig abgeleitet wird.
Bei mehrstöckigen Fassaden müssen alle waagerechten Fugen mit den gelenkig gelagerten Gelenk- und Gelenk-Toleranzdichtungen aufgebaut werden.
Für senkrechte Dehnungs- und Montagefugen sind geeignete Aluminium-Einlegeprofile und Halbprofile sowie Dehnfugen- dichtungen zu verwenden.
Verglasung / Einbaueinheiten:
Alle Verglasungen, auch in den Einsatzeinheiten, liegen in der gleichen Ebene. Die Glasdichtungen aus witterungsbeständigem, schwarzem EPDM auf der Raumseite sind in den Pfosten und Traversen (6 mm Versatz) unterschiedlich tief.
Auf der Außenseite befinden sich zwei individuelle Dichtungen aus witterungsbeständigem, schwarzem EPDM mit einer Höhe von 5 mm. Aus Dichtungsebenen, die aus EPDM gefertigt werden, müssen die Moldings und Transoms verwendet werden.
Belüftung:
An allen vier Ecken eines jeden Modulfeldes wird eine Falzbelüftung und ein Dampfdruckausgleich in den Pfostenfalz erreicht.
Für Feldentwässerung und Belüftung sind in den Aluminiumdruckplatten, Deckel und Dichtungen entsprechende Öffnungen vorzusehen.
Profilbreite:
Pfosten, Montagepfosten, Heck 50 mm
Profil Grundtiefen:
Pfosten 105 mm
Transom 110 mm
Abdeckkappe (Pfosten) 20 mm
Abdeckkappe (Querbalken) 15 mm
















